お問い合わせ候補一覧
- 住所
- 茨城県北茨城市磯原町磯原5-53
- アクセス
- 常磐線 磯原駅 から 徒歩20分
- 賃料 5.0万円万円
- 管理費等 0円
- 敷金:2ヶ月
- 礼金:0ヶ月
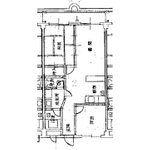
- 間取り 和(6帖) 洋(4.5帖) LDK
- 専有面積:51.3m2
お問い合わせフォーム
下記のフォームに必要項目、お問い合わせ内容を入力後、プライバシーポリシーをご確認ご同意のうえ送信ボタンを押して下さい。






